制造业知识分享、信息发布平台-兴盛制造网 Email: 206027815@qq.com

农田小气候生态气象站——一款各就各位的农业园区气象监测方案

分类: 其他 浏览量: 留言数: 56818

  农田小气候生态气象站——一款各就各位的农业园区气象监测方案 (2024全+境/派+送/直+达)

  【万象环境】型号WX-NY4 【顺+丰包+邮发货。选万象就是选安心】厂家直供上门安装

  农业气象站的主要职责是监测和预测天气变化,为农业生产提供重要的气象信息。在它的“视线”范围内,无论是和煦的阳光、轻柔的微风,还是骤雨、冰雹,无一能逃过它的“法眼”。农业气象站就像一位经验丰富的老农,凭借多年的观察和积累,对天气的变化了如指掌。它用精准的数据和科学的分析,为农民提供可靠的决策依据,帮助他们在风调雨顺的季节里收获满满的果实,在风雨飘摇的时刻也能化险为夷。

  

  一、产品简介

  WX-NY4农业气象站(具备省级CMA证书)是针对农业环境监测以及作物生长状况监控预警设计的一款气象监测系统,低功耗、可快速安装、多功能于一体的高精度气象观测设备。

  山东万象环境农业气象站主要由气象传感器,数采仪,太阳能供电系统,碳钢塔台,云平台,多通道通信接口以及设备安装套件组成。免调试,可快速布置,广泛应用于智慧农业、农田种植、作物生产、特色农业、果园、草原、科研等领域,通过农业气象站监测,提高农业抗灾能力,提高农事作业的效率。

  二、产品特点

  1、低功耗数采仪:静态功耗小于50uA

  2、标配GPRS联网、支持扩展蓝牙、有线传输

  3、支持选配7寸液晶触屏或LED屏 版本:4.4.2、四核Cortex-A7,512M/4G

  4、支持modbus485传感器扩展

  5、太阳能充电管理MPPT自动功率点跟踪

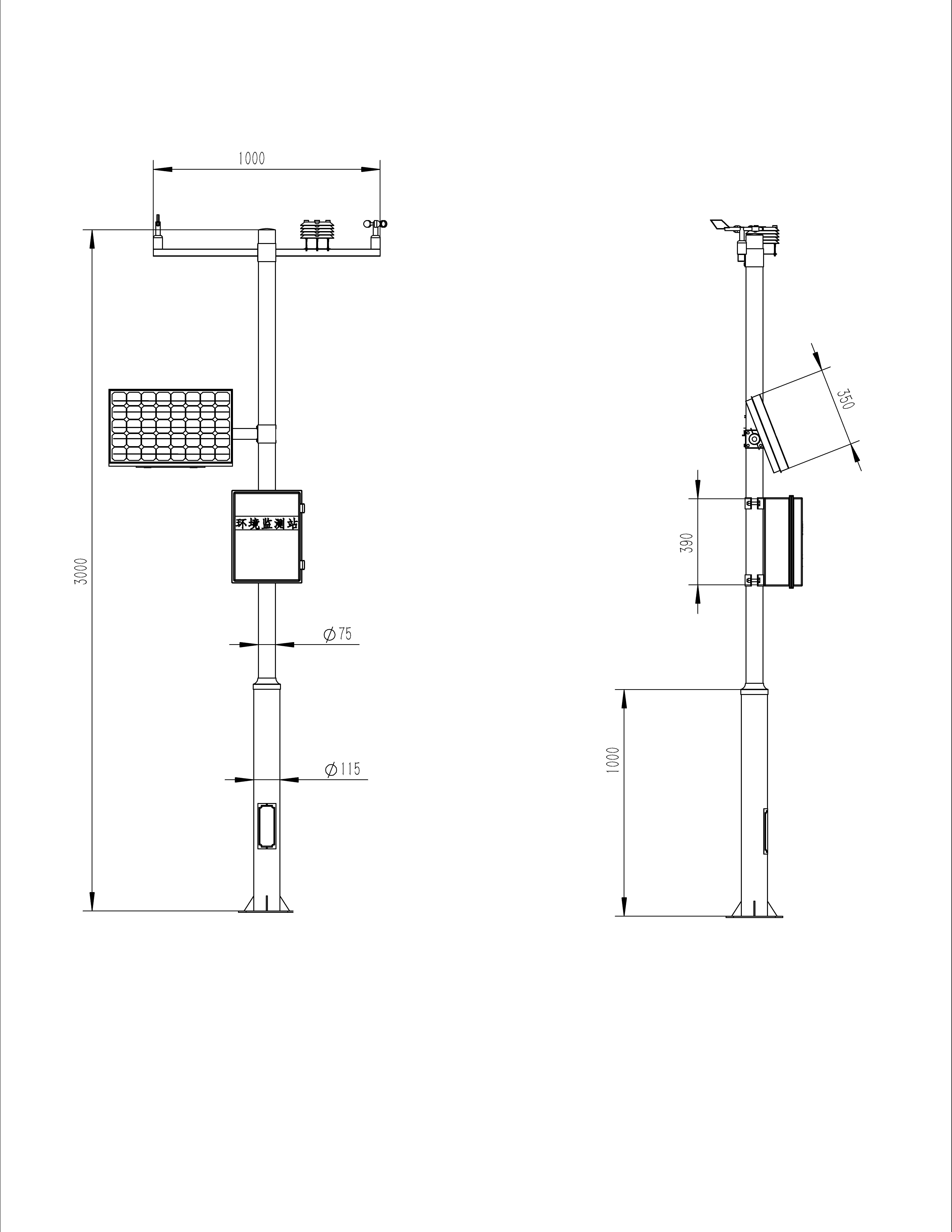
  6、三米碳钢塔台,四面横臂固定法兰,可选配避雷针

  7、超限后可PC端、手机端报警

  8、ABS材质防护箱,耐腐蚀、抗氧化,防水等级IP66

  三、技术参数

  1)数采仪供电接口:GX-12-3P插头,输入电压5V,带RS232输出Json数据格式,数采仪供电:DC5V±0.5V峰值电流1A

  2)传感器modbus、485接口:GX-12-4P插头,输出供电电压12V/1A,设备配置接口:GX-12-4P插头,输入电压5V

  3)太阳能供电、配置铅酸电池,可选配30W 20AH/50W 40AH/100W 100AH.充电控制器:150W,MPPT自动功率点跟踪,效率提高20%

  4)数据上传间隔:1分钟-1000分钟可调

  5)7寸安卓触屏,屏幕尺寸:1024*600 RGB LCD

  6)部分传感器参数

  

  四、产品尺寸图

  

  五、产品结构图

  

本文地址: https://www.xsyiq.com/56818.html
网站内容如侵犯了您的权益,请联系我们删除。

标签: 上一篇: 下一篇: